
Талалихина, 167 м²
Калининград, Ленинградский р-н

Старый фонд
Совмещенная кухня-гостиная
3 жилые комнаты
2 санузла
Эта трехкомнатная квартира на трех этажах в стиле теплого минимализма для семьи. Планировочное решение было выбрано с целью создания пространства, которое кажется легким и воздушным. Оно предназначено для людей, которые устали от захламленности и стремятся к осознанию своей собственной нормы вещей. Вся квартира сочетает функциональность и стиль, создавая приятное и комфортное пространство для всей семьи.



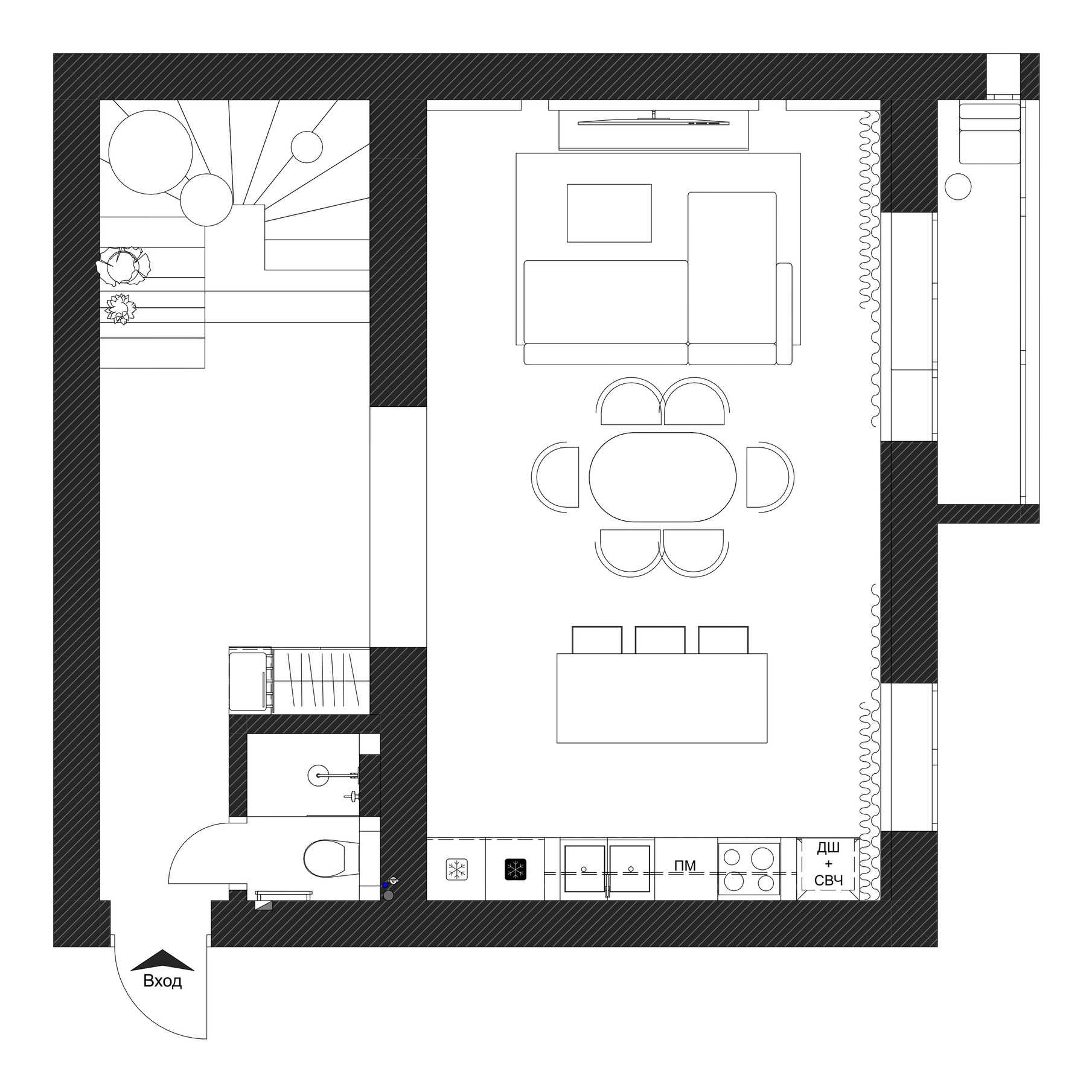
Коридор
Декоративная штукатурка с эффектом бетона — износостойкая и долго сохраняет благородный вид. Чтобы не загромождать узкую прихожую, хранение уличных вещей организовано на торце шкафа. Лестница с эффектом «парящей» конструкции визуально облегчает интерьер и пропускает свет с верхнего этажа на нижний.



Кухня-гостиная
Прямая компактная кухня, остров с зоной для хранения бокалов, которую выделяет декоративный световой потолок. Обеденный стол для семейных ужинов освещен гибким подвесным светильником. Фактура дерева на кухне создает уют и смягчает холодный бетон пола.





Гостевой санузел
Поддерживает цветовое решение 1 этажа, несмотря на свое второстепенное значение на фоне мастер санузла, наполнен необходимыми секциями хранения вокруг инсталляции и в душевой и имеет вечернюю теневую подсветку на отдельной клавише выключателя.



Спальня
Отдельная гардеробная зона с макияжным столиком. Цветовое решение поддерживает тенденцию первого этажа, хотя выражено визуально более мягкими материалами.





Кабинет
Просторное рабочее место, зона хранения документов и специализированных предметов одежды, мягкая зона отдыха, тв для возможности проведения презентаций или просмотра фильмов. На балконе от кабинета — барная стойка с кофемашиной для душевных перерывов.







Мастер санузел
Ванна-джакузи для двоих с тропическим душем, торцевые полочки для средств гигиены, напольная цилиндрическая раковина, отдельные полотенцесушители для банных полотенец и рук, теневая вечерняя подсветка санузла.






Детская
Сложная геометрия мансардного потолка, большая рабочая зона с ручной росписью под интерес ребенка, большая кровать с мягким корпусом и пуфом, отдельная игровая кинозона в нише, разнообразие зон хранения с учетом скошенного потолка.








Хотите так же?
Заполните форму, и мы свяжемся с вами в ближайшее время, а также следите за реализацией проектов в наших социальных сетях.

